
V mirni soseski, v zahodnem delu Podutika, kjer se nahajajo večinoma eno- in dvodružinske hiše, prodamo krasno mansardno stanovanje z balkonom in dvema parkirnima mestoma pred hišo.
Stanovanje ne skriva svojega izvirnega, podstrešnega porekla, ravno nasprotno, strešna lesena konstrukcija je celo precejšen poudarek interierja, izjemna višina in povečan volumen pa seveda vizualno dodatno povečata prostore. Svetloba, ki prodira v prostor skozi premišljeno postavljena okna, ustvarja zanimivo igro senc, ki je odvisna od dela dneva, od letnega časa in vremenskih razmer.
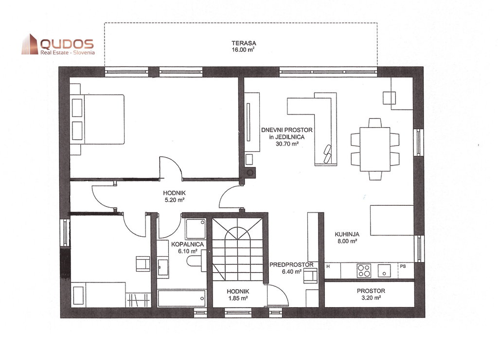
Iz dnevne sobe in iz spalnice dostopamo na velik balkon (16 m2), kjer lahko ob jutranji kavi ali kozarcu vina uživamo v pogledu na zeleni del soseske in bližnji gozd. Stanovanje je orientirano proti zahodu oz. jugozahodu (dnevna soba in spalnica), druga soba pa proti vzhodu. Originalno 4-sobni tloris so lastniki prilagodili lastnim potrebam in združili dve zahodni sobi v eno (23 m2). Z manjšim posegom se da sobo spet "razdružiti", tako da dobimo 3 spalnice oziroma štirisobno stanovanje. Stanovanje sestavljajo torej velik dnevnobivalni prostor, dve spalnici, hodnik in lastno stopnišče, kopalnica, wc, balkon in shramba v pritličju. Uporabne površine je 93,4 m2, balkon 16 m2, shramba 3 m2. Je klimatizirano, ogrevanje je talno, energent zemeljski plin.
V hiši sta poleg našega mansardnega stanovanja le še dve enoti. Hiša ima gradbeno in uporabno dovoljenje. V bližini se nahaja Mercator Podutik in postajališče avtobusov LPP. Do obvoznice vas loči le 750 m, do središča Ljubljane pa 5 km.
Stanovanje je opremljeno premišljeno in z občutkom za estetiko, minimalistično, a nikakor pusto: le osnovni, kakovostni kosi pohištva in izbrani dekorativni dodatki ustvarjajo izjemno prijetno vzdušje, ki prepriča s toplino in domačnostjo. Naša fotografinja ga je po ogledu poimenovala 'pinterest stanovanje' – kar je morda najboljša definicija tega elegantnega, a hkrati zelo prijaznega prostora.
Tudi če niste ljubitelj mansardnih stanovanj, vas bo to edinstveno stanovanje očaralo, predvsem s svojo čudovito energijo, svetlobo in lepimi pogledi na okolico. Dovolite mi, da vam ga predstavim tudi v živo, Boris, 051323333.
Kupec povrne prodajalcu del stroška za posredovanje v višini 2,44 % z vključenim ddv.