Properties

Ljubljana mesto, Šiška / SOLD333.000 €

Sale

Vrsta:ApartmentVelikost:92.3 m2Leto gradnje:2004

Posrednik

  • Additional
    BalconyBasementCovered Parking
  • Connectors
    ElectricityWaterSewerage
  • Heating
    Gas
  • Orientation
    EW
  • Luxury
    Air Conditioning

Kaj je v bližini?

Bus Stop0,4 km / 5 min
Store0.7 km / 10 min
Bakery0.5 km / 7 min
Post Office1.4 km / 19 min
School0.3 km / 4 min

Podroben opis nepremičnine

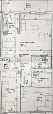
V nizkem bloku, ki se nahaja na Tacenski cesti 11 prodamo prijetno, prostorno stanovanje. Locirano je v drugem in najvišjem nadstropju, je zelo svetlo in ima lep pogled iz balkona na Šmarno goro. Lega je vzhod-zahod. Blok nima dvigala.

Stanovanje je sestavljeno velikega dnevnobivalnega prostora, ki zajema dnevno sobo, kuhinjo in jedilnico (kuhinja je ločena s steno, ki se lahko po želji tudi podre in odpre celoten prostor), prostornega balkona, dveh spalnic, dveh kopalnic, kleti in lastniškega parkirnega mesta, ki je pod objektom. Celotna površina stanovanja je 92,3 m2 in od tega je 77,85 uporabne površine, 9,4 m2 balkona in 5,1 m2 kleti. 

Lokacija je mirna, neprometna in nudi izredno hiter dostop do avtoceste, ki omogoča hiter dostop do ostalih delov Ljubljane in okolice Ljubljane. V bližini bloka je praktično vse kar potrebujete za udobno življenje: trgovina Lidl, Merkur, Lokali, LPP, železniška postaja, igralne površine, zelene površine, fitnes, vrtec, osnovna šola in gimnazija Šentvid. 

TEHNIČNE LASTNOSTI:
Ogrevanje je urejeno na lastno plinsko peč.

Internet-optika

dvigalo: NE 

klima: DA

Prijetno stanovanje vas bo očaralo že na prvi pogled/obisk s svojo prostornostjo, naravno svetlobo in funkcionalnim tlorisom. Zemljiškoknjižno stanje je urejeno, prevzem je možen v mesecu aprilu. 

kupec prodajalcu povrne del stroškov posredovanja v višini 2% od dosežene pogodbene cene + DDV

Za več informacij sem vam z veseljem na voljo.

Kontaktiraj agenta