
Z veseljem predstavljam novo vrhunsko zasnovano sosesko sodobnih hiš, ki se nahaja na idilični lokaciji ob vznožju Šmarne gore. Umestitev soseske v okolje tudi najbolj zahtevnim ponuja kakovostno in udobno bivanje, veliko mero zasebnosti in trajnost urejene soseske. Lokacija navdušuje s sončno lego, mirom in zeleno okolico, nahaja se v bližini rekreacijskih površin in šole, hkrati pa omogoča hiter dostop do avtoceste in centra mesta. Hiše odlikujejo izvrsten dizajn in funkcionalni tlorisi, vrhunski materiali in izjemne rešitve arhitektov, ki se odražajo tako v vsaki posamični hiši, kot v soseki kot celoti.
Hiše bodo ob predaji kupcem zunaj v celoti dokončane, v notranjosti pa do nivoja konstrukcijskih elementov. Tovrstni način kupcem omogoča večjo svobodo pri ureditvi lastnega doma v skladu z individualnimi potrebami in željami (razporeditve, namembnosti prostorov, izbira materialov in obdelav, …). Izvajalec del na objektu bo kupcem omogočal tudi dokončanje hiš na ključ po njihovih željah in potrebah v roku treh mesecev od podpisa pogodbe.
Zasnovani so trije tipi hiš in sicer štiri samostojne vile, devet vrstnih atrijskih hiš in 15 vrstnih hiš. Ob gradnji hiš je bila v ospredju trajnost in poudarek na vrhunskih naravnih materialih. Obložene bodo s fasadno opeko v kombinaciji klasičnega ometa ter drugih naravnih materialov. Hiše bodo imele vgrajena kvalitetna lesena troslojna okna.
Soseska zaprtega tipa ima v celoti podkletene hiše, ki v spodnji etaži omogočajo ureditev shrambenih in servisnih prostorov ter večnamenski del hiše, ki se lahko izkoristi za domači wellness, fitnes in podobno.
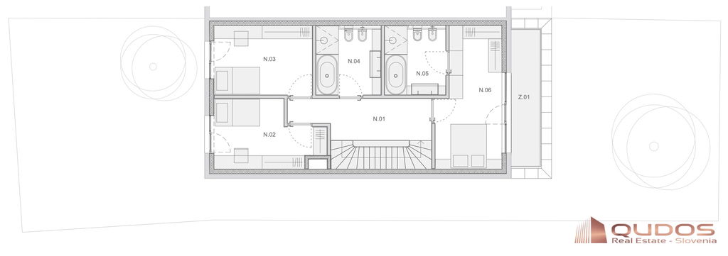
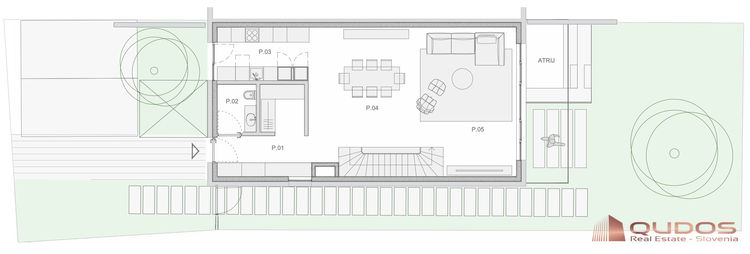
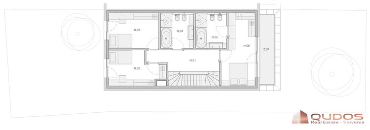
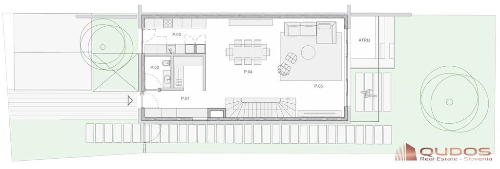
RAZPOREDITEV PROSTOROV HIŠE S8:
- KLET: utiliti, shramba, večnamenski prostor, strojnica
- PRITLIČJE: vhodni prostor, kuhinja, velik in svetel dnevni prostor z jedilnico, dnevni wc
- NADSTROPJE: spalnica z garderobo ter lastno kopalnico, dve sobi, ter kopalnica.
POVRŠINA:
- Bivalna površina: 224.85m2
- Terasa: 29m2
- Parkirno mesto: 25m2
- Atrij: 9m2
LEGA:
- Vzhod
- Zahod
GLAVNE PREDNOSTI:
Soseska je zasnovana tako, da nudi udobje, varnost in kakovostno bivanje, ki je prijazno za družine, pare in posameznike.
Slikovni material je povzet iz kataloga, tako da lahko pride do manjših odstopanj, zato vas vabim, da me za več informacij pokličete (Dejan 041988900) ali pa se oglasite v naših prostorih v centru mesta na Dalmatinovi ulici 3 v Ljubljani (po predhodnem dogovoru).
V oglaševano ceno je že vključen 9,5% DDV. Kupec ne plača provizije.